-
Промышленные секционные ворота ISD01
Промышленные секционные ворота серии ISD01 устанавливаются в проемы производственных зданий, складских помещений, цехов, терминалов и прочих промышленных объектов. Усиленная конструкция ворот обеспечивает бесперебойную эксплуатацию и повышенные прочностные характеристики, а надежная система уплотнителей гарантирует высокую термоизоляцию помещения.
Внешний вид
Таблица размеров
Параметр Показатель Высота проема, мм 2 000–8 000 Ширина проема, мм 1 100–8 000 Притолока, мм От 150 Пристенки, мм От 120 Зона применения
Преимущества
Конструкция
1. Вертикальная направляющая;
2. Угловая стойка;
3. Вал цилиндрический;
4. Устройство защиты от обрыва пружины;
5. Барабан;
6. П-образный кронштейн;
7. Балансирующий пружинный механизм (торсионная пружина);
8. Муфта соединительная;
9. Внутренний опорный кронштейн;
10. Верхняя опора с держателем ролика;
11. Боковая опора с держателем ролика;
12. Устройство защиты от разрыва троса;
13. Сэндвич-панель;
14. Внутренняя петля;
15. Нижний профиль и уплотнитель;
16. Уплотнитель боковой;
17. Верхний профиль;
18. Верхний уплотнитель;
19. Боковая крышка для панелей с отверстиями для крепления;
20. Ручка «ступенька»;
21. Пружинный амортизатор;
22. Кронштейн крепления к потолку.Технические характеристики
Параметр Значение Примечание Сопротивление теплопередаче полотна, м² · °С/Вт, класс (ГОСТ 31174) 1,13 (А) Значение зависит от размера ворот, указано для ворот размером 3 500 × 3 000 мм Звукоизоляция, дБ, класс (ГОСТ 31174) 24 (А) Сопротивление ветровой нагрузке, Па, класс (ГОСТ 31174) 460 (В) Усилие ручного открывания и закрывания, Н, не более 260 Предел водонепроницаемости при перепаде давления, Па (ГОСТ 31174) 250 Объемная воздухопроницаемость, м³/м²*ч (ГОСТ 31174) 4,9 Безотказность, количество циклов открывания-закрывания, не менее Безотказность ворот – 120 000,
торсионного механизма – 25 000 (по умолчанию)Вес полотна ворот, кг/м² 13,5 Точное значение зависит от типоразмера панелей, используемых в конструкции ворот Новинки
Полностью обновлена система опорных кронштейнов торсионного механизма, что позволило существенно облегчить процесс монтажа:
- удобная установка торсионного механизма в сборе и легкая фиксация подшипников на заранее установленных на выносной трубе кронштейнах;
- крепление устройств защиты от разрыва пружин производится напрямую к опорному кронштейну, без использования переходников;
- новая система предполагает фиксацию кронштейна охватывающей скобой, что позволяет изменять положение опорных кронштейнов в процессе монтажа.
Полностью модернизирована вся линейка устройств защиты от разрыва пружин. Обновленная конструкция упростила монтаж и повысила прочностные свойства изделия на 30 %.
Условия эксплуатации
1. Секции полотна ворот должны плавно передвигаться по направляющим, а сами ворота должны быть сбалансированными, т. е. их вес должен компенсироваться крутящим моментом пружин.
2. Ручное открывание и закрывание ворот осуществляется только при помощи ручки.
3. При открывании и закрывании ворот вручную не прилагайте к ним больших усилий. Резкие рывки запрещаются.
4. Следите за тем, чтобы люди и животные не находились в зоне действия ворот во время их работы.
5. Строго запрещено передвигаться под движущимся полотном ворот, т. к. это может привести к травмам.
6. Не подвергайте ворота ударам и не препятствуйте их свободному движению при открывании и закрывании.
7. Следите за тем, чтобы во время движения полотна в проеме отсутствовали посторонние предметы и мусор. Их наличие может привести к перекосу и заклиниванию полотна ворот.
8. Не подвергайте загрязнению направляющие и ролики, т. к. это может привести к нарушению плавности хода, а в случае наличия электропривода это может привести к его перегрузке и выходу из строя.
Гарантийные обязательства
Покупателю предоставляется 10 лет гарантии на отсутствие сквозной коррозии cэндвич-панелей и стальных профилей системы направляющих.
Документация
Чертежи
ISD01, низкий подъем, расчетные направляющие;
ISD01, низкий подъем, расчетные направляющие, окантовка проема;
ISD01, низкий подъем, расчетные направляющие, формирование проема;
ISD01, низкий подъем, комплекты направляющих RKTN;
ISD01, низкий подъем, комплекты направляющих RKTN, окантовка проема;
ISD01, низкий подъем, комплекты направляющих RKTN, формирование проема;
ISD01, низкий подъем, барабан сзади;
ISD01, низкий подъем, барабан сзади, окантовка проема;
ISD01, низкий подъем, барабан сзади, формирование проема;
ISD01, стандартный подъем;
ISD01, стандартный подъем, окантовка проема;
ISD01, стандартный подъем, формирование проема;
ISD01, стандартный наклонный подъем;
ISD01, стандартный наклонный подъем, окантовка проема;
ISD01, стандартный наклонный подъем, формирование проема;
ISD01, высокий подъем;
ISD01, высокий подъем, окантовка проема;
ISD01, высокий подъем, формирование проема;
ISD01, высокий подъем с двойным изгибом направляющих;
ISD01, высокий подъем с двойным изгибом направляющих, окантовка проема;
ISD01, высокий подъем с двойным изгибом направляющих, формирование проема;
ISD01, высокий подъем, вал снизу (цилиндрический вал, монтаж на трубе 100х100);
ISD01, высокий подъем, вал снизу (цилиндрический вал, монтаж на трубе 100х100), окантовка проема;
ISD01, высокий подъем, вал снизу (цилиндрический вал, монтаж на трубе 100х100), формирование проема;
ISD01, высокий наклонный подъем;
ISD01, высокий наклонный подъем, окантовка проема;
ISD01, высокий наклонный подъем, формирование проема;
ISD01, высокий наклонный подъем, вал снизу (цилиндрический вал, монтаж на трубе 100х100);
ISD01, высокий наклонный подъем, вал снизу (цилиндрический вал, монтаж на трубе 100х100), окантовка проема;
ISD01, высокий наклонный подъем, вал снизу (цилиндрический вал, монтаж на трубе 100х100), формирование проема;
ISD01, вертикальный подъем;
ISD01, вертикальный подъем, окантовка проема;
ISD01, вертикальный подъем, формирование проема;
ISD01, вертикальный подъем, вал снизу (цилиндрический вал, монтаж на трубе 100х100);
ISD01, вертикальный подъем, вал снизу (цилиндрический вал, монтаж на трубе 100х100), окантовка проема;
ISD01, вертикальный подъем, вал снизу (цилиндрический вал, монтаж на трубе 100х100), формирование проема;
Размещение калитки и окон в полотне секционных ворот (калитка V4 Standard);
Размещение калитки и окон в полотне секционных ворот (калитка V5).Паспорта и сертификаты
Паспорт «Промышленные секционные ворота ISD01»;
Сертификат соответствия «Ворота для зданий и сооружений»;
Сертификат «Секционные ворота для работы во взрывоопасных средах»;
Сертификат соответствия «Сэндвич-панели»;
Сертификат соответствия «Изделия комплектующие для ворот»;
Сертификат соответствия «Ворота секционные металлические» (Беларусь);
Экспертное заключение, соответствие СанПиН.Инструкции
Инструкция по монтажу промышленных секционных ворот серии ISD01;
Инструкция по монтажу секционных ворот со стандартным и высоким типами подъема. -
-
Дизайн панелей
Тип поверхности
Цвета
Таблица соответствия доступного дизайна, текстуры и цвета
-
Комплектация
Базовая комплектация
Полотно из энергоэффективных сэндвич-панелей толщиной 40 мм и усилением под внутренние петли и боковые опоры.Комплект направляющих и угловых стоек из стали толщиной 2 мм обладает повышенным запасом прочности, имеет все необходимые для монтажа перфорации.Торсионный механизм рассчитан на 25 000 циклов. Обеспечивает открывание и закрывание полотна без усилий.Устройство защиты от обрыва пружины блокирует вал при нештатных ситуациях, что предотвращает падение полотна ворот.Устройство защиты от обрыва троса устанавливается в качестве нижнего кронштейна на полотно ворот. В случае обрыва троса механизм срабатывает и предотвращает падение полотна ворот.Дополнительная комплектация
Механическая задвижка позволяет запирать полотно изнутри помещения. Отличается простотой и надежностью.Специальная конструкция окон (размером 627 × 327 или 607 × 202 мм) обеспечивает плотное прилегание к полотну ворот, что защищает его от промерзания и теплопотери. Окна изготавливаются с окантовкой черного цвета.Механический замок позволяет блокировать полотно ворот в закрытом положении как изнутри помещения, так и со стороны улицы.Калитка имеет усовершенствованную конструкцию, отличается высокой прочностью и эстетичным внешним видом. Минимальная высота щита – 2 130 мм.Возможность автоматизации ворот приводом и системами безопасности (см. раздел «Автоматика для ворот»).Ручной цепной привод устанавливается на промышленные ворота всех типов подъема, служит для подъема и опускания полотна ворот вручную.Антикоррозионный пакет комплектующих рекомендуется устанавливать в случае эксплуатации ворот в условиях высокой влажности для обеспечения надежной защиты от коррозии и стабильной работы ворот. Данный пакет обладает увеличенным ресурсом работы и включает: окрашенную пружину, окрашенные направляющие, нержавеющие боковые опоры, петли и метизы, нержавеющий трос, окрашенные боковые крышки.Дополнительный внешний контур уплотнения обеспечивает максимальное прилегание полотна к уплотнителю. Образующаяся между уплотнителями воздушная камера обеспечивает наилучшую герметизацию, препятствуя проникновению холода в помещение.Опция «термопакет» предполагает установку термостойкого нижнего (верхнего) алюминиевого профиля с применением технологии Т-bridge, что позволяет избежать теплопотерь.Искронедающее исполнение секционных ворот находит применение в промышленных помещениях со взрывоопасными средами. Конструктивные решения, используемые в данной модификации ворот позволяют исключить появление искр при эксплуатации, а так же предотвратить накопление опасных электростатических зарядов в узлах конструкции. -
Монтаж
Подготовка строительного объекта
Для снятия необходимых показателей достаточно рулетки и строительного уровня. Все замеры производятся внутри помещения. Замер каждой величины необходимо производить как минимум в трех точках (в крайних положениях и по центру).
H – высота проема (расстояние от пола до верха проема).
B – ширина проема (расстояние от левого до правого края проема).
h – притолока (расстояние от верха проема до потолка) от 150 мм.
b1/b2 – левое/правое боковое расстояние (расстояние от соответствующего края проема до препятствия) от 120 мм.
L – глубина помещения.При замере Н и В за итоговый размер принимается наибольшая величина.
При замере h, b1, b2 и L за итоговый размер принимается наименьшая величина.
Требования к строительному объекту
Перепад уровня пола по всей ширине проема не должен превышать 10 мм. Необходимо обеспечить выдержку монтажной плоскости (пристенков и притолоки). Основание под установку системы направляющих должно быть монолитным и прочным, при отсутствии такового требуется дополнительная окантовка либо формирование проема металлоизделиями.
Способы монтажа
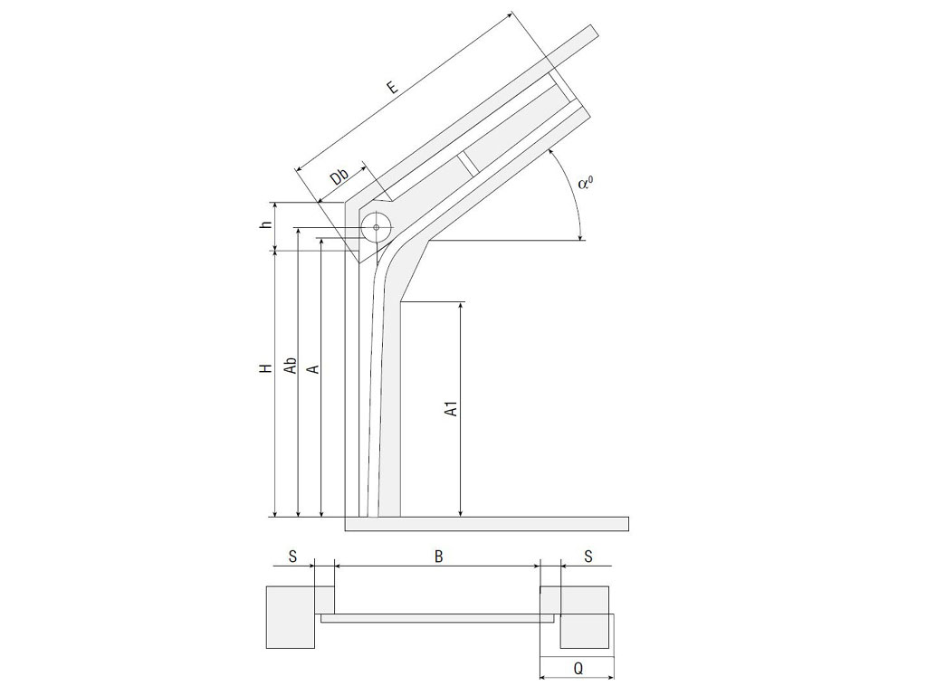
Стандартные конструктивные решения
Усл. обозначение, наименование параметра Расчетная формула H, мм Высота проема H h, мм Высота притолоки ≥ 230;
≥ 260 (с потолочным приводом);
≥ 280 (при H ≥ 3 700);
≥ 280 (с вальным приводом, при H < 3 700)B, мм Ширина проема B A, мм Высота угловой стойки H + 110 Ab, мм Высота оси вала и барабана ≥ A + 59 A1, мм Высота вертикальной направляющей А - 543 A2, мм Высота горизонтальной направляющей А - 106 E, мм Длина горизонтальных направляющих Н + 300 Db, мм Рабочая зона торсионного механизма Зависит от размеров проема и веса щита S, мм Минимальное боковое пространство 120 P, мм Зона расположения потолочного привода Н + 1 185 n, мм Перекрытие проема в открытом положении До 190 – без потолочного привода, ширина проема до 4 500;
до 235 – без потолочного привода, ширина проема более 4 500;
до 10 – с потолочным приводом, ширина проема до 4 500;
до 70 – с потолочным приводом, ширина проема свыше 4 500Усл. обозначение, наименование параметра Расчетная формула H, мм Высота проема H h, мм Высота притолоки ≥ 160 B, мм Ширина проема B A, мм Высота угловой стойки H + 54 Ab, мм Высота оси вала и барабана ≥ A + 59 A1, мм Высота вертикальной направляющей А - 552 A2, мм Высота горизонтальной направляющей А - 115 E, мм Длина горизонтальных направляющих Н + 440 Db, мм Рабочая зона торсионного механизма Зависит от размеров проема и веса щита S, мм Минимальное боковое пространство 120 P, мм Зона расположения потолочного привода Н + 1 185 n, мм Перекрытие проема в открытом положении До 245 – без потолочно привода, ширина проема до 4 500;
до 300 – без потлочного привода, ширина проема более 4 500;
до 60 – с потолочным приводом, ширина проема до 4 500;
до 125 – с потолочным приводом, ширина проема свыше 4 500Усл. обозначение, наименование параметра Расчетная формула H, мм Высота проема H h, мм Высота притолоки ≥ 150;
≥ 160 (с потолочным приводом)B, мм Ширина проема B A, мм Высота угловой стойки При h > 170: H + 110; при 150 ≤ h ≤ 170: H + h - 60 Ab, мм Высота оси вала и барабана При h ≤ 170: H + 55; при 150 ≤ h ≤ 170: H + h - 47 A1, мм Высота вертикальной направляющей А - 543 A2, мм Высота горизонтальной направляющей А - 106 E, мм Длина горизонтальных направляющих Н + 510 Db, мм Рабочая зона торсионного механизма Зависит от размеров проема и веса щита S, мм Минимальное боковое пространство 120 P, мм Зона расположения потолочного привода Н + 1 185 n, мм Перекрытие проема в открытом положении 240 (без привода);
40...60 (с потолочным приводом)Усл. обозначение, наименование параметра Расчетная формула H, мм Высота проема H h, мм Высота притолоки > 500 B, мм Ширина проема B A, мм Высота угловой стойки H + 250…985 Ab, мм Высота оси вала и барабана А + 86/97 A1, мм Высота вертикальной направляющей Н - 300 E, мм Длина горизонтальных направляющих Зависит от угла α° (размер, ограничивающий рабочую зону ворот вглубь помещения) Db, мм Рабочая зона торсионного механизма Зависит от размеров проема и веса щита S, мм Минимальное боковое пространство 120 α° Угол наклона направляющих к горизонтали 5...65 (кратен 5°) Q, мм Зона расположения привода на вал 300 Усл. обозначение, наименование параметра Расчетная формула H, мм Высота проема H h, мм Высота притолоки ≥ 660 B, мм Ширина проема B HL, мм Расстояние от уровня горизонтальных направляющих до проема По умолчанию h - 330 A, мм Высота угловой стойки H + HL Ab, мм Высота оси вала и барабана A + 86/97 A1, мм Высота вертикальной направляющей А - 580 A2, мм Высота горизонтальной направляющей А - 53 E, мм Длина горизонтальных направляющих H - НL + 470...600 Db, мм Рабочая зона торсионного механизма Зависит от размеров проема и веса щита S, мм Минимальное боковое пространство 120 Q, мм Зона расположения привода на вал 300 Усл. обозначение, наименование параметра Расчетная формула H, мм Высота проема H h, мм Высота притолоки ≥1 600 B, мм Ширина проема B HL, мм Расстояние от уровня горизонтальных направляющих до проема 1 330 ≤ HL ≤ h - 150 A, мм Высота угловой стойки H + HL Ab, мм Высота оси вала и барабана H + 400...600 + 280 A1, мм Высота вертикальной направляющей А - 580 A2, мм Высота горизонтальной направляющей А - 53 E, мм Длина горизонтальных направляющих H - НL + 470...600 Db, мм Рабочая зона торсионного механизма Зависит от размеров проема и веса щита S, мм Минимальное боковое пространство ≥ 300 Q, мм Зона расположения привода на вал ≥ 500 Усл. обозначение, наименование параметра Расчетная формула H, мм Высота проема H h, мм Высота притолоки ≥ 660 B, мм Ширина проема B HL, мм Расстояние от уровня горизонтальных направляющих до проема 330 A, мм Высота угловой стойки H + HL + 15...749 Ab, мм Высота оси вала и барабана ≤ А + 86/97 A1, мм Высота вертикальной направляющей Н + HL - 330...580 E, мм Длина горизонтальных направляющих Зависит от угла α° (размер, ограничивающий рабочую зону ворот вглубь помещения) Db, мм Рабочая зона торсионного механизма Зависит от размеров проема и веса щита S, мм Минимальное боковое пространство 120 α° Угол наклона направляющих к горизонтали 5...65 (кратен 5°) Q, мм Зона расположения привода на вал 300 Усл. обозначение, наименование параметра Расчетная формула H, мм Высота проема H h, мм Высота притолоки ≥ 1 600 B, мм Ширина проема B HL, мм Расстояние от уровня горизонтальных направляющих до проема ≥ 1 330 A, мм Высота угловой стойки H + HL + 15...749 Ab, мм Высота оси вала и барабана > H + 680 A1, мм Высота вертикальной направляющей Н + HL - 330...580 E, мм Длина горизонтальных направляющих Зависит от угла α° (размер, ограничивающий рабочую зону ворот вглубь помещения) Db, мм Рабочая зона торсионного механизма Зависит от размеров проема и веса щита S, мм Минимальное боковое пространство 300 min α° Угол наклона направляющих к горизонтали 5...65 (кратен 5°) Q, мм Зона расположения привода на вал ≥ 650 Усл. обозначение, наименование параметра Расчетная формула H, мм Высота проема H h, мм Высота притолоки > Н + 500 B, мм Ширина проема B A, мм Высота угловой стойки 2H + 120 Ab, мм Высота оси вала и барабана A + 166 S, мм Минимальное боковое пространство 120 Q, мм Зона расположения привода на вал 300 Усл. обозначение, наименование параметра Расчетная формула H, мм Высота проема H h, мм Высота притолоки > H + 120 B, мм Ширина проема B A, мм Высота угловой стойки 2H + 120 Ab, мм Высота оси вала и барабана H + 680 S, мм Минимальное боковое пространство 500 min Q, мм Зона расположения привода на вал ≥ 650 Усл. обозначение, наименование параметра Расчетная формула H, мм Высота проема H h, мм Высота притолоки R381: ≥ 420; R305: ≥ 350 B, мм Ширина проема B A, мм Высота угловой стойки R381: H + 235; R305: H + 165 Ab, мм Высота оси вала и барабана A + 97 A1, мм Высота вертикальной направляющей R381: A - 580; R305: A - 490 A2, мм Высота горизонтальной направляющей А - 110 E, мм Длина горизонтальных направляющих R381: H + 200; R305: H + 250 Db, мм Рабочая зона торсионного механизма Зависит от размеров проема и веса щита S, мм Минимальное боковое пространство 120 P, мм Зона расположения потолочного привода Н + 1 060 Q, мм Зона расположения привода на вал 300
Промышленные секционные ворота из стальных сэндвич-панелей с торсионным механизмом ISD01
Рекомендации по замеру проема для установки секционных ворот
Проем для гаражных ворот характеризуется следующими параметрами:
H – высота проема в свету;
B – ширина в свету;
SR – расстояние до правой стены помещения от края проема, называемое правым заплечиком;
SL – расстояние до левой стены от края проема, или левый заплечик;
D – глубина помещения, т.е. расстояние от притолоки до задней стены;
h – расстояние от верха проема до потолка, или притолока.
Поскольку идеальных проемов не бывает, замерять вышеуказанные размеры нужно не менее, чем в трех местах: посередине проема, у правого и левого угла. Ориентироваться следует на наибольший показатель.
Нужно непременно проконтролировать при замере, чтобы притолока проема находилась в одной плоскости с заплечиками. На этих двух параметрах базируется установка секционных гаражных ворот изнутри проема.
Крайне желательно, чтобы на момент проведения замера уровень чистового пола был уже известен. Если строительство гаража не закончено, и чистового пола пока нет, необходимо вычислить и отметить его уровень на стене. Другим важным моментом является необходимость определить пространство для открывания ворот. Препятствиями могут стать потолочные перемычки, выступы на стенах, проходящие коммуникации.
Не стоит забывать и о том, что процесс монтажа секционных ворот требует определенного пространства для крепления, поэтому для заплечиков и притолоки имеются некоторые ограничения. Вполне вероятно, что придется несколько занизить или сузить проем с тем, чтобы получить возможность увеличить заплечики и притолоку до требуемых размеров. В любом случае, полученные параметры проема необходимо сравнить с расчетными.
Как нужно замерять высоту притолоки h
Выпуклый бетонный потолок.
Зачастую в гаражах потолок бывает выполнен монолитным способом и оказывается при этом недостаточно ровным, с выпуклостями. В подобных случаях при расчете уровня потолка за основу берется самая нижняя его точка.
По притолоке проходят трубы.
Коммуникации в гаражных помещениях редко бывают проложены скрытым способом и иногда проходят по притолоке. Поскольку убрать их не представляется возможным, то нижнюю точку проходящих труб или кабелей следует принимать за уровень потолка.
Уровень потолка снижается в глубину гаража.
В данном случае необходимо найти на потолке точку, отстоящую от проема на расстояние, равное сумме высоты проема плюс 0,7 м.
Слишком низкая (менее 110 мм) притолока.
Если высота притолоки составляет менее 110 мм (или 150 мм для случаев установки потолочного привода), ее следует увеличить путем занижения проема. Для решения этой задачи можно использовать профильную трубу или деревянный брус. Снаружи конструкцию нужно закрыть фальш-панелью.
Присутствие второй перемычки.
Если не брать во внимание наличие второй перемычки, установленные ворота не смогут открываться. Для того, чтобы этого избежать, нужно правильно определить в данном случае уровень потолка и взять за основу нижнюю точку перемычки.
Невертикальная притолока.
Часть притолоки может оказаться невертикальной. В таких случаях уровнем потолка следует считать точку окончания вертикальной части притолоки. Напоминаем, что она и заплечики должны находиться в одной плоскости.
Неравномерная по высоте притолока.
В ряде случаев притолока может находиться в одной плоскости с заплечиками и быть достаточной для монтажа секционных ворот, но иметь неравномерную высоту. Недостаток устраняется ее выравниванием с помощью профильной трубы, бруса, штукатурки; при необходимости, можно срезать ее часть. То же касается и заплечиков.
Неравномерная (скошенная) высота притолоки по ширине проема.
Если потолок в гараже выполнен со скосом по ширине помещения, то замер высоты притолоки в данном случае необходимо проводить по точке, отстоящей на расстоянии 100 мм от края проема.
Потолок выполнен из плит перекрытий с ребрами жесткости.
Если потолок в гараже представляет собой железобетонные перекрытия с ребрами жесткости, то в данном случае уровнем потолка будет нижняя точка ребер плит перекрытия. Заказывая изготовление конструкции секционных ворот, следует предусмотреть большее количество монтажного уголка, который потребуется для крепления горизонтальных направляющих.
По потолку проходят трубы вентиляции.
Вентиляционные коммуникации, смонтированные под потолком, следует принимать во внимание при замерах проема для ворот. В таких случаях за уровень потолка принимают нижнюю точку вентиляционных труб.
Определение мест крепления конструкции ворот к стенам.
Крепление секционных гаражных ворот на заплечики к стенам происходит при помощи анкеров или саморезов. При этом ось крепления должна проходить строго параллельно краю проема ворот и отстоять от него на расстояние 45 мм. Места крепления ворот играют важную роль. Так, если обрамление проема выполнено из каких-либо материалов, делающих крепление невозможным, следует увеличить отступ и, соответственно, ширину проема ворот, а также сдвинуть ручку ближе к центру.
Пространство, потребное для установки секционных ворот, должно быть освобождено от стройматериалов и строительного мусора; Проемы должны быть прямоугольной формы (либо другой, предварительно согласованной с Заказчиком формы, соответствующей проекту); плоскости обрамления должны иметь гладкую и ровную поверхность, без трещин и наплывов раствора; рабочие поверхности не должны иметь существенных отклонений от вертикали и горизонтали (в пределах +/- 1,5-5,0 мм).



































