-
Скоростные ПВХ ворота
Скоростные ворота FHSD предназначены для перекрытия проемов морозильных помещений, куда необходим частый доступ людей и техники.
Таблица размеров
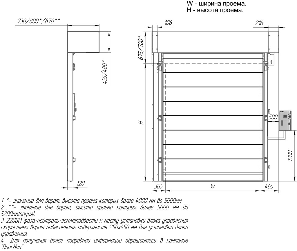
Параметр Показатель Ширина проема, мм 1 400–3 370 Высота проема, мм 1 800–5 000 (опция — 5 200) Притолока, мм 676 + 50, 697 + 50 Пристенки, мм 365 + 50/465 + 50 (сторона без привода/сторона с приводом) Глубина короба, мм 733, 803, 864 Преимущества
Конструкция
1. Вал;
2. Вал привода;
3. Привод;
4. Кожух привода;
5. Короб вала;
6. Стойка с направляющей для движения полотна;
7. Изоляционная рама с нагревательным кабелем;
8. Противовес в защитном кожухе;
9. Двойное полотно из полиуретана;
10. Фотоэлементы;
11. Блок управления в корпусе из нержавеющей стали.Технические характеристики
Параметр Значение Примечание Скорость открывания, м/с 0,8–1,6 В зависимости от размера ворот, регулируется Скорость закрывания, м/с До 0,6 Регулируется Диапазон рабочих температур, °С -25…+50 Ворота для морозильных помещений серии FHSD можно установить только с противоположной стороны морозильной камеры (снаружи) Герметичность Величина воздухопроницаемости на единицу длины шва — 5,4 м³/(м·ч); воздухопроницаемость на единицу площади — 8,2 м³/(м·ч) Сопротивление ветровой нагрузке, Па Номинальное положительное давление — 400; номинальное отрицательное давление — 600 Коэффициент теплопроводности, Вт/(м·К) 3,0 Мощность, Вт 1 500 Класс защиты IP IP 54 (опционально — IP 65) Концевые положения отслеживаются энкодером Напряжение питания, В 220 В/50 Гц Однофазное Безотказность, количество циклов открывания-закрывания, не менее 750 000 Элементы безопасности Ворота соответствуют европейскому стандарту EN 13241 CN Одна пара фотоэлементов, установленная на высоте 500 мм от уровня пола; мигающий индикатор; сирена (опционально) Новинки
Условия эксплуатации
Для обеспечения надежной и бесперебойной работы ворот рекомендуется регулярно проводить их технический осмотр и обслуживание.
Ручное открывание и закрываие ворот производится с помощью воротка.
Не допускайте загрязнения направляющей ПВХ-полотна.
Запрещено находиться в проеме во время открывания и закрывания ворот во избежание травмирования.
Следите за тем, чтобы во время открывания и закрывания ворот в проеме отсутствовали посторонние предметы.
Функция самовосстановления полотна ворот в направляющих служит для работы ворот в аварийных условиях, в случае непреднамеренного наезда транспортом. Она не предназначена для работы при намеренном и систематическом выбивании полотна из направляющих. Работоспособность функции обеспечивается возможностью выхода «зиппера», установленного на полотне ворот из пластиковых направляющих. Работоспособность функции не может быть обеспечена в случае нанесения ударов, по степени воздействия превышающих прочностные параметры отдельных компонентов полотна и элементов системы. Например, в случае наезда на полотно с высокой скоростью, ударов острыми предметами, ударов в верхнюю часть ворот поднятыми вилами погрузчика и т. п. После удара по полотну оно автоматически заправляется обратно в направляющие в последующем цикле закрывания.
Ворота для морозильных помещений серии FHSD возможно эксплуатировать, только с противоположной стороны морозильной камеры (снаружи).
Гарантийные обязательства
Покупателю предоставляется гарантия работоспособности скоростных рулонных ворот производства концерна DoorHan на срок 1 год для розничных и на срок 2 года для дилерских заказов с момента приобретения.
Документация
Чертежи
Скоростные рулонные ворота FHSD;
Схема установки скоростных рулонных ворот FHSD.Паспорта и сертификаты
Сертификат соответствия (скоростные ворота);
Сертификат соответствия (блоки управления).Инструкции
Блок управления DoorHan SERVO;
Рекомендуемая схема установки, буферная камера. -
-
Цвета каркаса
Цвета полотна
-
Комплектация
Базовая комплектация
Полотно из двух слоев кордовой ткани с полиуретановым покрытием из высокопрочного волокна, расстояние заполнено теплоизоляционным материалом.Корпус блока управления из нержавеющей стали: размер — 250 × 490 × 140 мм; степень защиты — IP 54 Напряжение питания — 220-240 В / 50-60 Гц; мощность -1,5 кВт; степень защиты — IP 54.Фотоэлементы устанавливаются на высоте 500 мм от уровня пола (есть возможность установить дополнительные как опцию).Дополнительная комплектация
-
Монтаж
Подготовка строительного объекта
Все замеры производятся внутри помещения. Замер каждой величины необходимо производить как минимум по трём точкам (в крайних положениях и по центру).
B – ширина проема (расстояние от левого края до правого края проема).
H – высота проема (расстояние от пола до верха проема).
h – притолока (расстояние от верха проема до потолка).
b1/b2 – левое/правое боковое расстояние (расстояние от соответствующего края проема до препятствия).
L – глубина верхней части ворот (расстояние от стены до препятствия).
Требования к строительному объекту
При замере Н, L и В за итоговый размер принимается наибольшая величина, при замере h, b1 и b2 – наименьшая величина.Способы монтажа
Стандартные конструктивные решения
Усл. обозначение, наименование параметра Расчетная формула B, мм Ширина проема 1 400–3 370 H, мм Высота проема 1 800–5 000 (опция — 5 200)










