-
Скоростные ПВХ ворота
Скоростные рулонные ворота серии SPEEDROLL SDF предназначены для изоляции и сохранения микроклимата внутри помещений на объектах пищевой промышленности. Все внешние компоненты ворот выполнены из нержавеющей стали.
Внешний вид
Таблица размеров
Параметр Показатель Ширина проема, мм 1 200–3 800 Высота проема, мм 1 700–3 800 Притолока, мм От 450 Пристенки, мм От 225 Преимущества
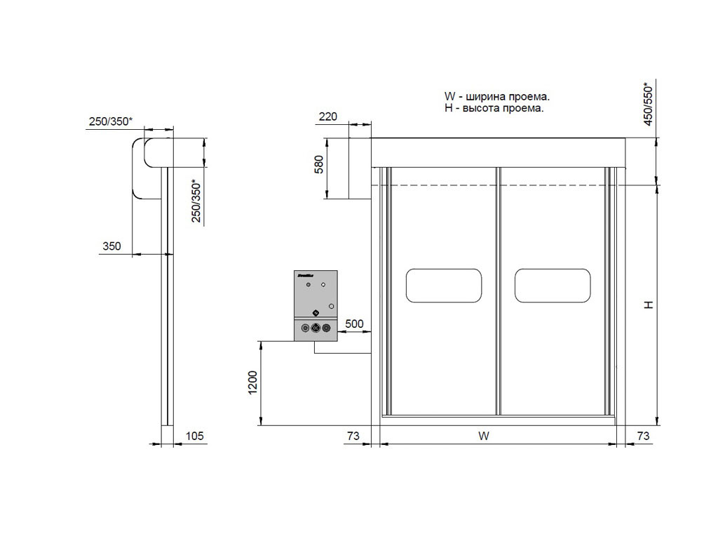
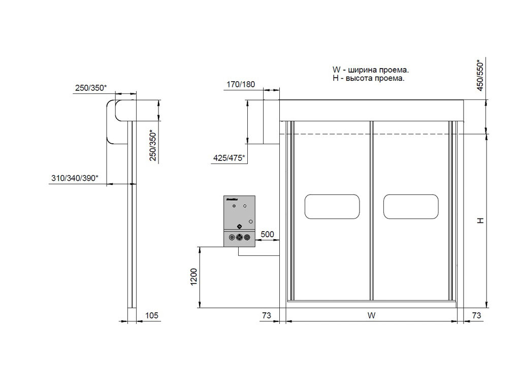
Конструкция
1. Электрический привод;
2. Вал;
3. Короб вала;
4. Полотно ворот;
5. Вставка прозрачная (окно/панель);
6. Стойка;
7. Направляющая для движения полотна;
8. Нижняя кромка полотна;
9. Фотоэлемент;
10. Блок управления.Технические характеристики
Параметр Значение Примечание Ветровая нагрузка, км/ч CLASS2 (до 90) Для ворот до 3 800 × 3 800 мм Ветровая нагрузка, км/ч CLASS3 (до 120) Для ворот до 3 000 × 3 000 мм Скорость открывания, м/с 2,0 Ворота до 3 000 × 3 000 мм Скорость открывания, м/с 1,5 Ворота до 3 800 × 3 800 мм Скорость закрывания, м/с 0,5 Диапазон рабочих температур, °С 0…+50 Мощность, Вт 1 500 Класс защиты IP IP54 Концевые положения отслеживаются энкодером Напряжение питания, В 220 В / 50 Гц Однофазное Напряжение питания, В 380 В / 50 Гц Трехфазное Безотказность, количество циклов открывания-закрывания, не менее 1 500 000 Зависит от условий эксплуатации Новинки
Артикул «147-3750». PA — универсальный радар для управления промышленными воротами и другими устройствами. Корпус радара выполнен из алюминиевого сплава. Имеет двойной диапазон обнаружения. Настройка через мобильное приложение. Высота обнаружения — от 2 до 6 м (стандарт); 10 м (X). Регулировка угла — от 0 до 90° в продольном направлении.
Артикул «147-3751». PRO BT — радар с распознаванием людей и транспортных средств, использующийся для управления промышленными воротами и другими устройствами. Может различать транспортные средства и пешеходов, определять продольное и поперечное движение. Настройка через мобильное приложение. Высота обнаружения — от 3 до 7 м. Регулировка угла — от 0 до 180° в продольном направлении.
Условия эксплуатации
Сопротивление ветровой нагрузке приведено для ворот серии SpeedRoll, находящихся в закрытом положении. Ворота не используются в местах с нестабильной и повышенной ветровой нагрузкой, вызванной естественными или техногенными факторами, таких как: здания, расположенные на морских побережьях или в горах; многоуровневые отапливаемые подземные паркинги со множеством въездов и выездов; производства с мощной приточно-вытяжной вентиляцией; в зданиях сложной конфигурации с множеством воротных проемов, где возможно появление сильных сквозняков. При наличии одного или нескольких вышеуказанных факторов рекомендуется использовать ворота серии SpeedFold или спиральные ворота серии HSSD. Для обеспечения надежной и бесперебойной работы ворот рекомендуется регулярно проводить их технический осмотр и обслуживание.
Ручное открывание и закрывание ворот производится с помощью воротка.
Не подвергайте ворота ударам и не препятствуйте их свободному открыванию и закрыванию.
Не допускайте загрязнения направляющей ПВХ-полотна.
Запрещено находиться в проеме во время открывания и закрывания ворот во избежание травмирования.
Следите за тем, чтобы во время открывания и закрывания ворот в проеме отсутствовали посторонние предметы.
Функция самовосстановления полотна в направляющих служит для работы ворот в аварийных условиях, например, в случае непреднамеренного наезда транспортом, и не предназначена для работы при намеренном и систематическом выбивании полотна из направляющих. Работоспособность функции обеспечивается возможностью выхода «зиппера», установленного на полотне ворот, из пластиковых направляющих. Работоспособность функции не может быть обеспечена в случае нанесения ударов, по степени воздействия превышающих прочностные параметры отдельных компонентов полотна и элементов системы. Например, в случае наезда на полотно с высокой скоростью, ударов острыми предметами, ударов в верхнюю часть ворот поднятыми вилами погрузчика и т. п.
Гарантийные обязательства
Покупателю предоставляется гарантия работоспособности скоростных рулонных ворот производства концерна DoorHan на срок 1 год для розничных и на срок 2 года для дилерских заказов с момента приобретения.
Документация
Чертежи
Скоростные рулонные ворота SPEEDROLL SDF (привод сбоку);
Схема установки скоростных рулонных ворот SPEEDROLL SDF.Паспорта и сертификаты
Сертификат соответствия (скоростные ворота);
Паспорт на скоростные рулонные ворота;
Сертификат соответствия (блоки управления).Инструкции
Ворота рулонные скоростные SPEEDROLL SDF (для пищевой промышленности);
Блок управления GfA;
Блок управления BMP;
Блок управления DoorHan;
Блок управления DoorHan SERVO;
Сервисная книжка скоростных рулонных ворот;
Датчик-радар базовый РА;
Датчик-радар PRO BT. -
-
Цвета каркаса
Цвета полотна
-
Комплектация
Базовая комплектация
Блок управления с частотным преобразователем в стальном окрашенном корпусе, 300 × 400 × 150 мм; класс защиты – IP54.Фотоэлементы устанавливаются на высоте 500 мм от пола, а также в верхних точках боковых стоек для выявления некорректной размотки полотна при открывании.Дополнительная комплектация
При закрывании, в случае прикосновения чувствительной нижней кромки к препятствию, с сенсора по радиоканалу передается сигнал в блок управления на открывание ворот.Пульт TRANSMITTER 4 предназначен для дистанционного управления четырьмя автоматическими устройствами DoorHan или автоматикой других производителей, к которой подключен радиоприемник DoorHan.Артикул «DHRE-mini». Приемник внешний одноканальный предназначен для приема радиосигнала на частоте 433 МГц. Отличается компактным размером и имеет провода для подключения.Артикул «147-3750». PA — универсальный радар для управления промышленными воротами и другими устройствами. Корпус радара выполнен из алюминиевого сплава. Имеет двойной диапазон обнаружения. Настройка через мобильное приложение. Высота обнаружения — от 2 до 6 м (стандарт); 10 м (X). Регулировка угла — от 0 до 90° в продольном направлении.Артикул «147-3751». PRO BT — радар с распознаванием людей и транспортных средств, использующийся для управления промышленными воротами и другими устройствами. Может различать транспортные средства и пешеходов, определять продольное и поперечное движение. Настройка через мобильное приложение. Высота обнаружения — от 3 до 7 м. Регулировка угла — от 0 до 180° в продольном направлении.Артикул «KEYSWITCH_N». Ключ-кнопка используется для подачи управляющей команды на блок управления автоматической системы, которая открывает, останавливает и закрывает ворота.Артикул «PHOTOCELL-N». Фотоэлементы — это устройство безопасности, состоящее из инфракрасного передатчика и приемника, которые устанавливаются в проем ворот. В случае пересечения инфракрасного луча в блок управления поступает сигнал о появлении препятствия в опасной зоне действия автоматической системы, и система вырабатывает реакцию, соответствующую установленной логике работы — остановка или реверс полотна ворот. Дальность действия фотоэлементов — до 20 м.Артикул «LAMP-PRO». Сигнальная лампа предупреждает о начале движении ворот и работает в течении всего цикла их движения.Артикул «LOOP1». Одноканальный детектор магнитной петли LOOP1. Артикул «LOOP2». Двухканальный детектор магнитной петли LOOP2. Детекторы предназначены для управления шлагбаумами, воротами и парковочными системами. Одноканальный детектор используется для контроля доступа и управления одним транспортным потоком; двухканальный — для контроля доступа и управления двумя транспортными потоками или определяет направление движения потока автомобилей. -
Монтаж
Подготовка строительного объекта
Все замеры производятся внутри помещения. Замер каждой величины необходимо производить как минимум по трём точкам (в крайних положениях и по центру).
B – ширина проема (расстояние от левого края до правого края проема).
H – высота проема (расстояние от пола до верха проема).
h – притолока (расстояние от верха проема до потолка).
b1/b2 – левое/правое боковое расстояние (расстояние от соответствующего края проема до препятствия).
Требования к строительному объекту
При замере Н и В за итоговый размер принимается наибольшая величина, при замере h, b1 и b2 – наименьшая величина.Способы монтажа
Стандартные конструктивные решения
Усл. обозначение, наименование параметра Расчетная формула B, мм Ширина проема 1 600–3 800 H, мм Высота проема 1 700–3 800 Усл. обозначение, наименование параметра Расчетная формула B, мм Ширина проема 1 600–3 800 H, мм Высота проема 1 700–3 800
















